Проект Б-188

** Не является публичной офертой! На сайте представлена художественная визуализация изделий, которая может отличаться от проектной документации производителя. Цены на продукцию указаны по состоянию на 1 января 2024 года и могут отличаться в зависимости от комплектации изделия. Актуальные цены уточняйте у продавца.
от 5 593 000 ₽
Купить каркас дом в ипотеку или кредит

Получить консультацию

Также Вы можете обратиться по номеру 8 800 707 8614 или написать в онлайн-чат справа внизу

Детали проекта

Общая площадь: 274,25 м2
Технология: Брус
Толщина стен: 80 мм


Проект Б-188

Комплект деталей для сборного дома из клееного профилированного бруса под кодовым наименованием «Б-188».

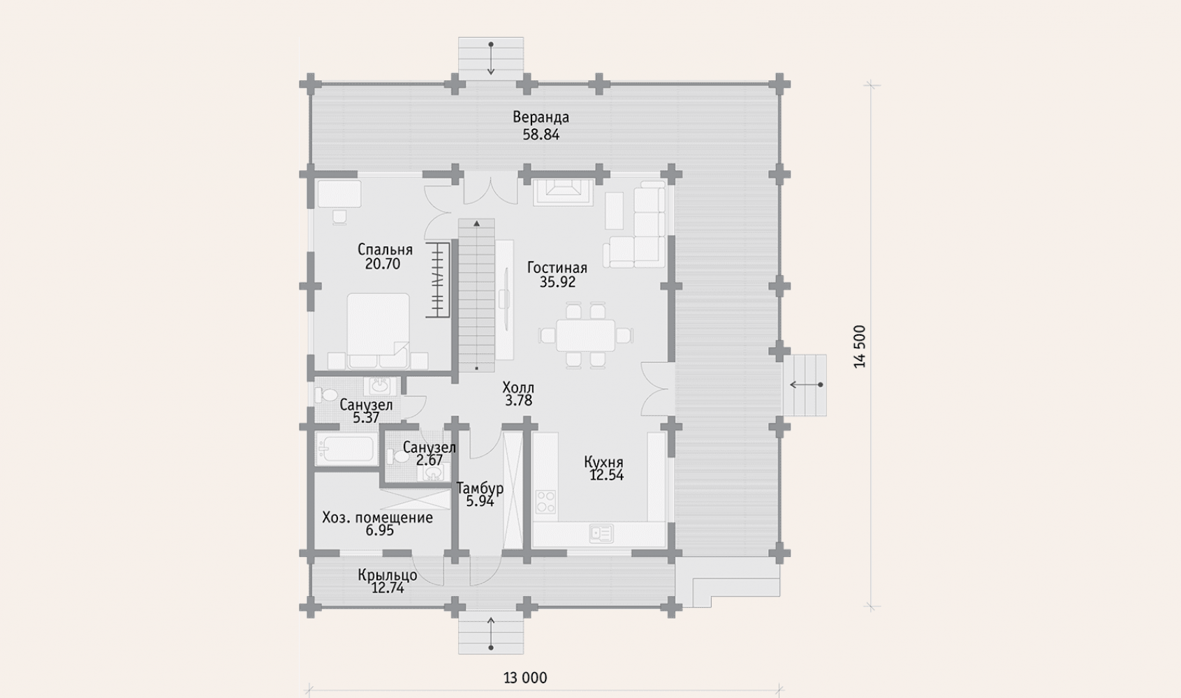
Проект представляет из себя одноэтажный дом со следующими характеристиками:

                                    1 этаж                                                                  2 этаж

Веранда

58,84 м2

Балкон

17,94 м2

Спальня

20,70 м2

Спальня

13,03 м2

Гостиная

35,92 м2

Санузел

7,61 м2

Санузел

2,67 м2

Холл

19,78 м2

Тамбур

5,94 м2

Спальня

17,38 м2

Кухня

12,54 м2

Спальня

19,14 м2

Санузел

5,37 м2

Балкон

13,86 м2

Хоз. помещение

6,95 м2



Крыльцо

12,74 м2




Стеновой комплект:

• Брус клееный, профилированный с чашками по проекту высотой 180 мм, толщиной 200 мм с защитной обработкой торцев составом «Teknos JRM», с зарезкой пазов под установку обсадных коробок. Порода материала – Ель.

• Межвенцовый уплотнитель для угловых соединений бруса – Райв Лайн, Финляндия;

• Закладная доска - сухая строганная 41*200 мм. Шпонка для установки окон и дверей – брусок сухой строганный 30*40 мм;

• Столбы клееные 200*200 мм.


Конструкции перекрытий (Расчет деревянных конструкций выполнен под тип опорной поверхности - ленточный монолитный фундамент):

• Перекрытия (балки перекрытий, лобовая доска);

• Черепной брусок – брусок пиленый 40*50 мм; доска черного пола – доска пиленая 16 мм.


Конструкции покрытия:

• Стропильная система (стропильные ноги, затяжки, прогоны, накладки коротыши);

• Контробрешетка – брусок, строганный 40*50 мм;

• Маячковая рейка – брусок пиленый 25*50 мм. Доска черного потолка – доска пиленая 16 мм;

• Обрешетка – доска пиленая 25 мм.


Конструкции внутренних каркасов:

• Внутренние каркасные перегородки (стойки, перемычки, обвязки – доска калиброванная);

• Доска имитации бруса – сухая профильная 19*177 мм.


Наружные отделочные материалы:

• Доска карниза – доска строганная 20*120 мм. Обшивка наружная для подшивки свесов карниза – доска строганная 20*120 мм;

• Наличник наружный для окон и дверей – доска строганная 20*120 мм;

• Обсадная доска – щит клееный 42*200 мм.


Крепежные элементы:

• Комплект креплений стенового комплекта (анкера, глухари, винты регулировочные, закладные детали, компенсаторы усадки);

• Комплект креплений перекрытий (опоры балок);

• Комплект креплений покрытия (скользящие опоры, болты, шпильки).

Написать отзыв

Внимание: HTML не поддерживается! Используйте обычный текст!
    Плохо           Хорошо
Captcha

Вы смотрели